Akiba House
Proyecto: Vivienda Akiba
Emplazamiento: Yamagata-shi, Japón
Obra: 1995 - 1996
El propietario nos pide un edificio que se desarrolle en una sola planta. Un jardín de flores. Se nos pide un espacio abierto y a su vez acogedor.
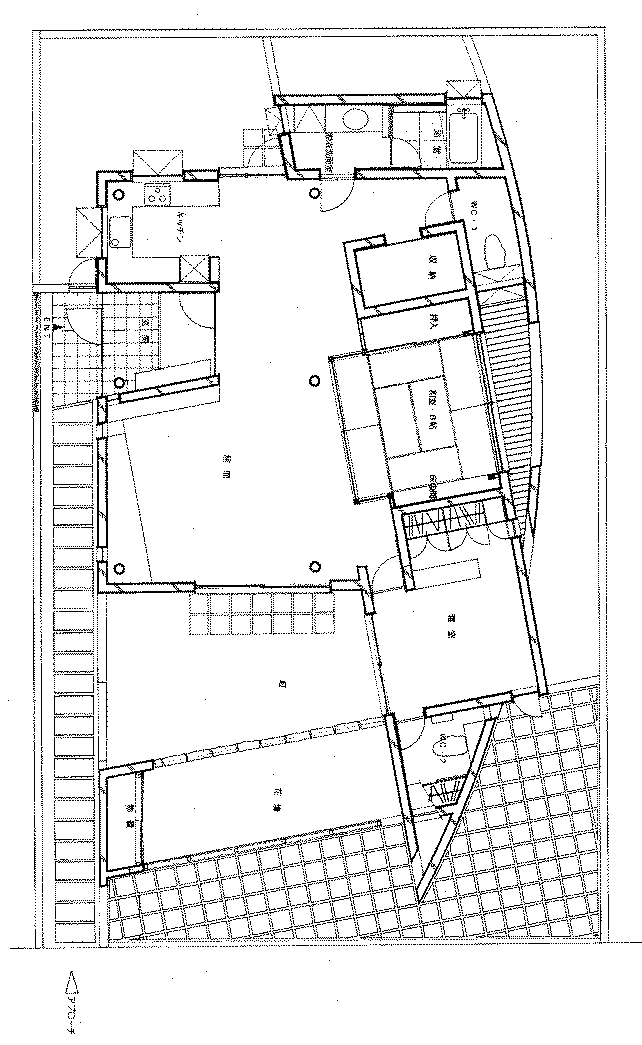
Utilizamos el viento como metáfora de escultor-creador del edificio. Le da una imagen que lo relaciona con el mar, redondas y suaves superficies, aunque el mar está lejos. El edificio nos recuerda un barco encallado con el casco perforado y tumbado de lado; el puente todavía se mantiene y la vela sigue flotando. Es un encuentro arqueológico, un moderno dinosaurio. Este barco es habitado, usado. El capitán sigue en el barco.
Estructuralmente, estos dos componentes quedan diferenciados en su expresión de hormigón visto y estructura metálica pintada. La sutil dislocación geométrica de la planta refuerza la idea de movimiento ya expresada.
El espacio interior en el puente se diseña con la idea de aparentar ser mayor que las limitaciones de superficies reales (132 m2). Para conseguir este efecto, el cambio de escala, la creación de un espacio único continuo y el amplio uso del cristal son factores importantes. El espacio interior y exterior fluyen vitalmente.
Los espacios de más recogimiento se sitúan dentro del casco. En este movimiento de formas, la presencia de la habitación japonesa, habitación de tatamis, es estratégicamente importante, por su carácter de uso multifuncional, directamente expuesta al espacio abierto del estar-comedor-cocina, pero dentro de casco. De esta forma se crea una expresión en planta hacia la zona norte, hacia el bosque de bambú, acentuando esa sensación de apacible brisa.
ficha técnica
Colaboraciones: Shin'Ichi Chino, arquitecto (ALMORE Architecture & Environment Research)
Constructora
Fotógrafo
Plazo de ejecución
Presupuesto
Superficie de actuación
Principales materiales
Organismo contratante
